Trilocale in vendita

Sondrio, Via Dante - Sondrio Centro
€ 170.000
3 locali 3 locali
115 Mq 115 Mq
1 bagno 1 bagno

Trilocale in vendita

Sondrio, Via Dante - Sondrio Centro

Descrizione annuncio

VIA DANTE 18 - SONDRIO (SO)

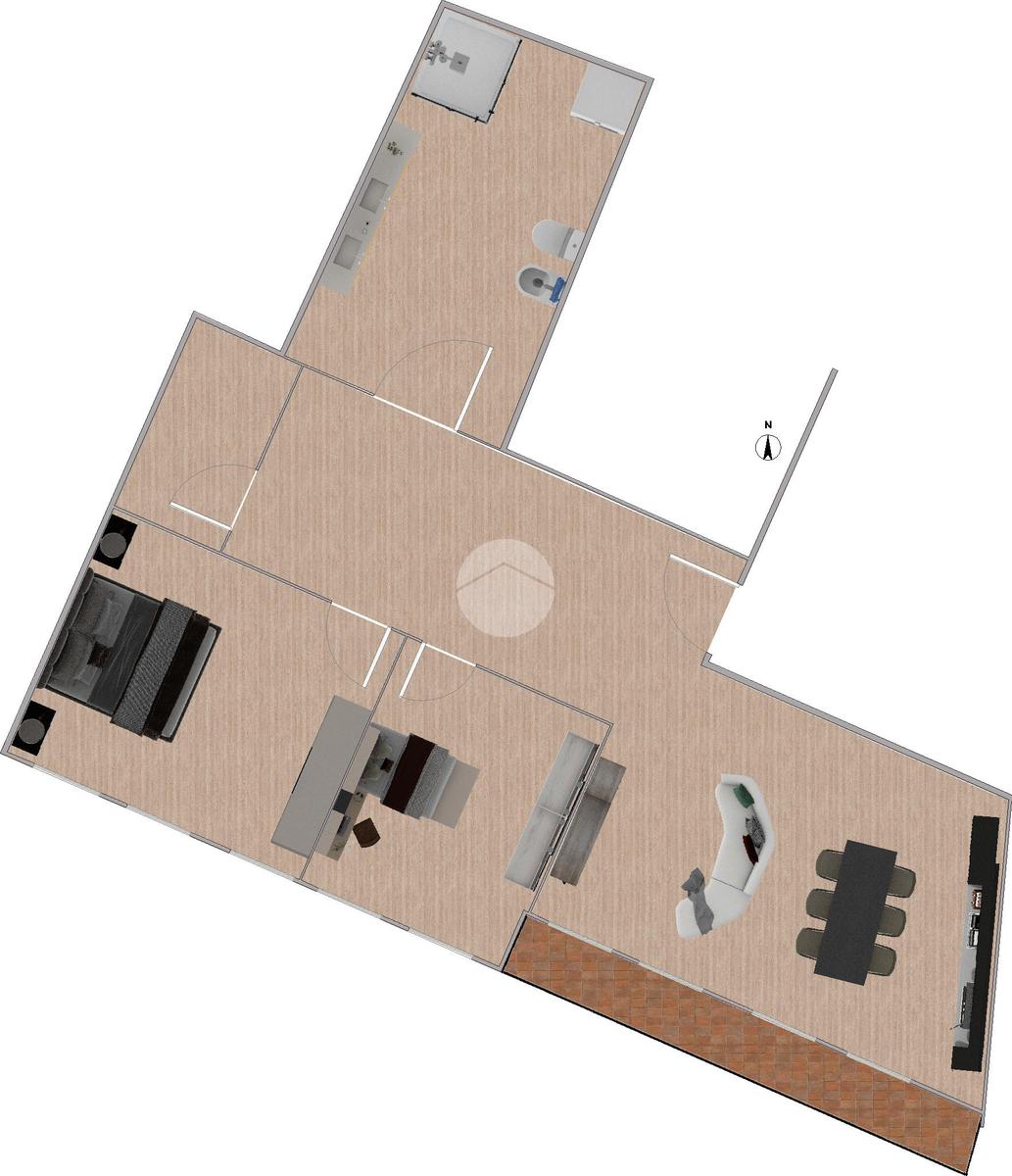
Proponiamo in vendita appartamento da realizzare, ricavabile da un’ampia soluzione di circa 374 mq attualmente divisibile in tre unità abitative.

L’ipotesi progettuale prevede la realizzazione di un appartamento ben distribuito e funzionale, composto da due camere da letto, un bagno, un comodo ripostiglio e una luminosa zona giorno con cucina e soggiorno in ambiente unico, con accesso diretto al balcone.

L’immobile sarebbe dotato di riscaldamento autonomo tramite installazione di caldaia, garantendo comfort e gestione indipendente dei consumi.

La proprietà è inserita in una palazzina storica nel pieno centro di Sondrio, con esposizione a ovest che assicura una piacevole luminosità.

Inoltre rappresenta una soluzione estremamente versatile: oltre all’uso residenziale, la destinazione attuale consente infatti di mantenere o sviluppare un utilizzo come ufficio o studio professionale.

A supporto delle potenzialità dell’intervento, mettiamo a disposizione rendering illustrativi con proposte e idee di realizzazione, utili per visualizzare le possibili soluzioni abitative e le opportunità di personalizzazione.

Grazie alla posizione centrale, alla possibilità di frazionamento e all’elevato potenziale di valorizzazione, l’immobile rappresenta un’ottima opportunità di investimento, ideale sia per la rivendita sia per la messa a reddito.

Mostra tutto

Nelle vicinanze

Trasporto pubblico Trasporto pubblico
Sondrio
Sondrio
520 m
Via Cesura
Via Cesura
130 m
Via Trento
Via Trento
290 m
Ricariche auto elettriche Ricariche auto elettriche
Parcheggio Interrato di Piazza Garibaldi
150 m
A2A Sondrio Via Caimi
170 m
Parcheggio di Viale Milano
610 m
BeCharge ESFE - Ente Paritetico per la Sicurezza e la Formazione dell'Edilizia
1,0 Km
Parcheggio Cimitero
1,1 Km
Scuole Scuole
Scuole
320 m
Convitto Nazionale «G. Piazzi» Sezione Maschile
440 m
Civica scuola di Musica e Danza
550 m
L’Istituto Salesiano “Don Bosco”
600 m
Istituto d'istruzione superiore “Giuseppe Piazzi – Candida Lena Perpenti”
770 m
Farmacia Farmacia
Farmacia
40 m
Dott. Quadro
50 m
Farmacia dr Biglioli
280 m
AEVV n. 1
410 m
AEVV 2
420 m
Ospedali Ospedali
Ospedali
790 m
Supermercati Supermercati
Punto Simply Market
240 m
Natur House
330 m
Supermercati
360 m
Al Baitel
410 m
CRAI
720 m
Negozi Negozi
Stefanel
10 m
Fratelli Natella
20 m
Valtelina
50 m
motivi
60 m
Negozi
70 m
Bar Bar
Varesina
60 m
Bar
80 m
Le Café
170 m
Terravino
180 m
Bar Genius
370 m
Ristoranti Ristoranti
Pizzeria il Meneghino
30 m
La locanda del zio Peppo
40 m
Il Locale
40 m
Osteria Petrus 1935
40 m
Cima 11
110 m
Mostra tutto

Caratteristiche

Rif.:
61163736
Piano:
2 di 4 con ascensore (Piano medio)
Terrazzi:
1
Camere da letto:
2
Arredamento:
Assente
Condizionamento:
Assente
Mostra tutto
Prezzo Prezzo
€ 170.000
Rata mutuo Rata mutuo
€ 804 / mese
Spese annue Spese annue
€ 0
Proponi il tuo prezzoProponi il tuo prezzo

Altre caratteristiche

Classe Energetica

E
E
E
E
E
E
E
E
E
EP globale non rinnovabile:
191.28 kW h/m² anno
EP globale rinnovabile:
46.10 kW h/m² anno
EP invernale del fabbricato:
EP estiva del fabbricato:
Anno di costruzione:
1900
Riscaldamento:
Autonomo
Tipo impianto:
A radiatori
Tipo alimentazione:
Metano

Ti interessa visionare l'immobile?

Fissa un appuntamento  Fissa un appuntamento

Richiedi informazioni

Clicca su Leggi per aprire l'informativa
* Questi campi sono obbligatori

Calcola il tuo mutuo

Semplice e senza impegno
Anticipo

( % )
Mutuo

( % )

pochi semplici passi

inserisci i tuoi dati
Questionario completato
Grazie per aver richiesto un appuntamento senza impegno con un nostro Consulente del Credito e Assicurativo.

Hai inserito correttamente tutti i dati necessari e a breve riceverai una e-mail con un link da convalidare per inviare i tuoi dati.
Affiliato
Sondriorete Srl
Via Colonnello Alessi, 25 23100 Sondrio (SO)

Il nostro staff


  • Serena Petracca
    Coordinatrice

  • Francesco Fanchetti
    Affiliato
Via Colonnello Alessi, 25 23100 Sondrio (SO)
Zona: Sondrio
Mostra su mappa
Affiliato
Sondriorete Srl
Via Colonnello Alessi, 25 23100 Sondrio (SO)

2026 Tecnocasa Franchising S.p.A. - P. IVA 08365160152 - Via Monte Bianco 60/A 20089 Rozzano (MI). Ogni agenzia ha un proprio titolare ed è autonoma. Privacy policy | Policy utilizzo | Cookie policy